平面圖分析│朗賢峯主打2房佔逾3成半 花款多多點揀好?

鷹君 (00041) 及港鐵 (00066) 合作發展的何文田朗賢峯,今公布最新部署。鷹君地產代理銷售及市務總經理梁淑儀表示,朗賢峯第IIA期及IIB期已上載樓書,預計本周開放示範單位。《地產站》現為大家分析一下朗賢峯第IIA期及第IIB期的平面圖,為大家提供相關入市攻略!
基本資料及景觀
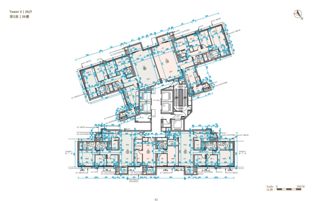
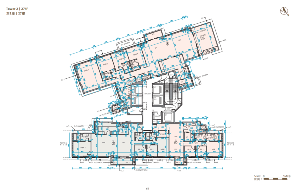
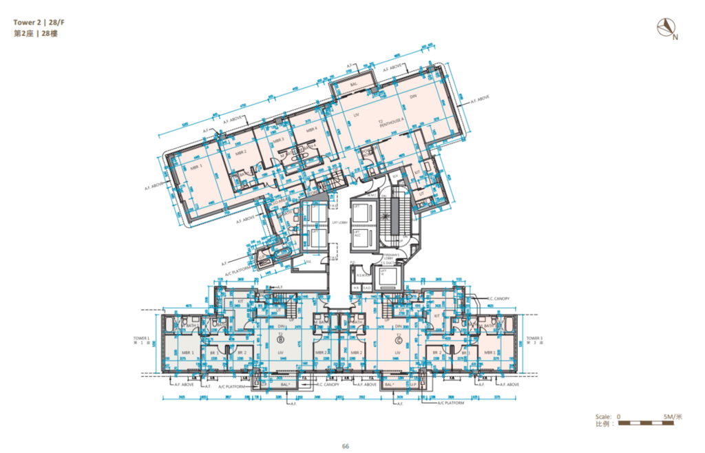
樓書顯示,朗賢峯由5座住宅大廈組成,細分第IIA期及第IIB期發展,當中第IIA期由3座組成 (第1座、第2座及第3座),提供418伙,戶型由2房起跳;第IIB期則由兩座 (第5座及第6座,每座再細分為A、B兩座) 組成,提供572伙,戶型由1房起跳,面積亦相對較細。全盤合共提供990伙,戶型由1房至4房,實用面積由340至2,572平方呎,預計關鍵日期均為2025年3月31日。景觀方面,項目向東南一帶的單位,可眺望開揚海景。
【朗賢峯基本資料】
| 發展項目名稱 | 朗賢峯 |
| 地址 | 何文田忠孝街1號 |
| 單位數目 | 990伙 (第IIA期:418伙;第IIB期:572伙) |
| 實用面積 | 340至2,572平方呎 |
| 戶型 | 1房至4房 |
| 預計關鍵日期 | 2025年3月31日 |
| 發展商 | 鷹君及港鐵 |
| 示範單位地址 | 未公布 |
| 朗賢峯專頁 | |
[朗賢峯戶型分布表]
| 戶型 | 實用面積 (平方呎) | 單位數目 (佔比) |
| 1房 | 377至388 | 198(20%) |
| 2房 | 482至685 | 372(37.58%) |
| 3房 | 725至998 | 281(28.38%) |
| 4房 | 1,271至1,433 | 60(6.06%) |
| 特色戶 | 340至2,572 | 79(7.98%) |
| 單位總數 | 990伙 |
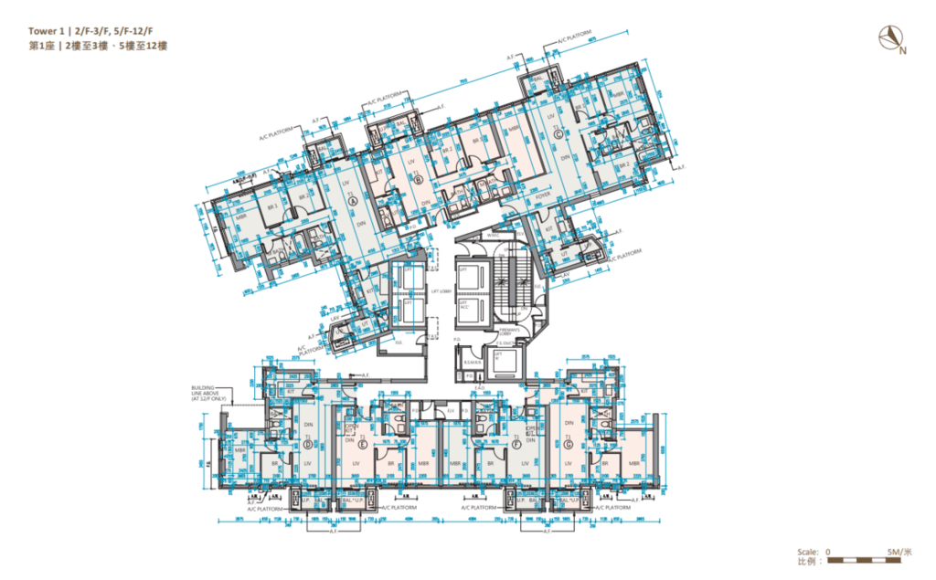
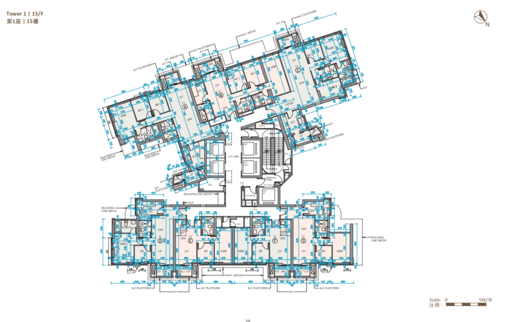
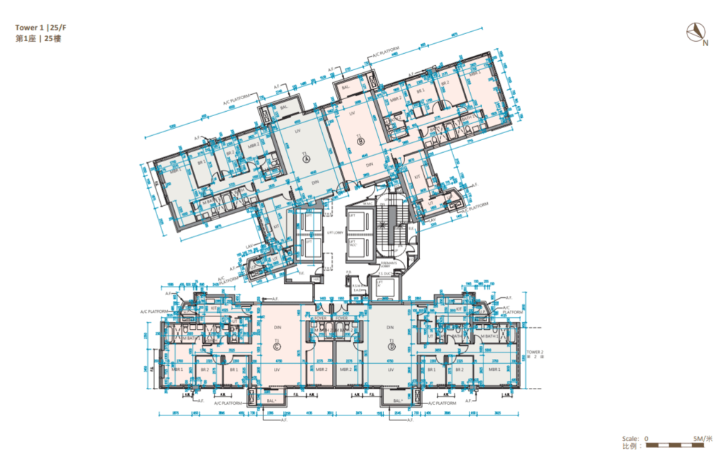
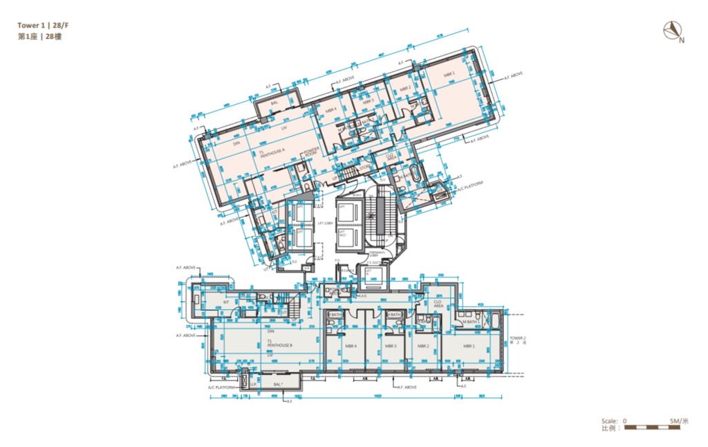
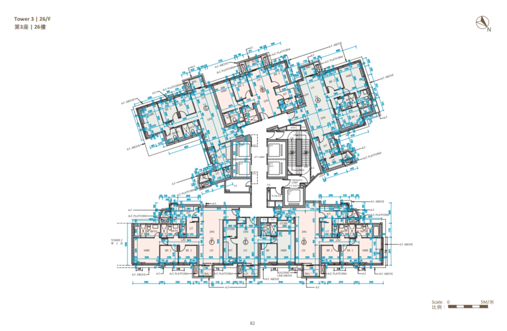
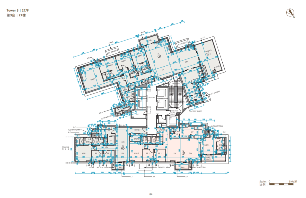
[點擊睇睇朗賢峯第IIA期平面圖]
[點擊睇睇朗賢峯第IIB期平面圖]
1房
朗賢峯所有1房戶均位於第IIB期,共有198伙,實用面積介乎377至388平方呎,佔全盤990伙約兩成,分布於第5A座2至27樓C室、第5B座2至27樓C、D、E室、第6A座2至27樓D、E室,以及第6B座C、D、E室。全數1房戶均為連套房設計,設開放式廚房,並外連露台。
2房
朗賢峯的2房單位分為純2房 (開放式廚房)、純2房 (梗廚)、2房連儲物室及2房1套,並有372伙,屬朗賢峯全盤的主打戶型,佔比逾37%;整體以純2房 (開放式廚房) 佔254伙最多。純2房單位方面,大部分均屬廳房同向,客廳外連露台;廚房則位於大門對出。部分如第IIB期5A座2至27樓F室,實用面積555平方呎,屬純2房 (梗廚) 間隔,此單位設有日字形客飯廳,廚房及睡房位置分布於一方,主人房的面積較細之餘,亦未有額外預留衣櫃位。
至於2房連儲物室單位見於第IIA期第2座16至26樓D室、第3座16至26樓E室,共有20伙,實用面積介乎567至568平方呎。單位內設日字形大廳,儲物室間隔四正,並經梗廚連接。兩房與廳同向,主人房內設預留衣櫃位。2房1套單位僅設兩伙,分別位於第IIA期第1座15樓D室及第3座15樓D室,實用面積分別為685及682平方呎;設有梗廚,大門前亦設有玄關,布局與一般純2房戶相若。
3房
朗賢峯全數3房單位均設有1間主人套房及工作間連廁,當中第IIB期第5B座2至18樓A室,以及6B座2至18樓A室,實用面積757平方呎,廚房屬開放式設計,旁邊則為空間四正的工作間連廁,其採趟門開關。第IIA期第2座27樓C室、第2座16至26樓E室、第3座27樓C室、第3座16至26樓D室,於大門旁邊設有額外儲物室,單位內設梗廚,實用面積介乎968至994平方呎,共有22伙。
其餘單位則為3房1套及工作間間隔,設有梗廚。當中第IIA期3座2至25樓A室,廚房位處飯廳盡頭,睡房2並非與廳同向之餘,窗戶空間亦較細,採光有限;至於5A座2至27樓A室,兩間房間位於廳堂右方,另一間則位處左方。其餘單位均為傳統設計,3間睡房一字排開,由走廊連接,與廳同向。
4房
朗賢峯所有4房單位均為4房雙套及工作間連廁設計,共60伙,實用面積介乎1,271至1,433平方呎;分布於第IIA期第1座16至26樓A至D室、第2座16至26樓A及B室。單位均設有偌大客飯廳,外接露台,4間房間均與廳同向,開則同樣四正。當中1座16至26樓A室及2座16至26樓B室,廚房開則較為不規則,擺位及布局需要留意;至於第1座C及D室,廚房的空間相對較窄。
特色單位
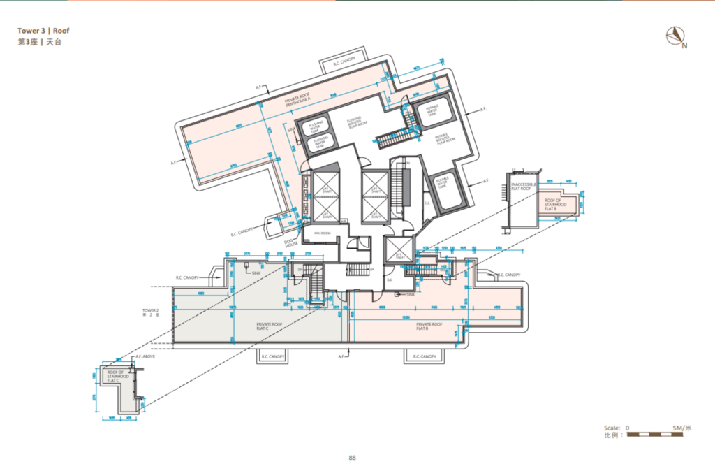
朗賢峯的特色單位主要分為連平台及連天台特色戶。當中朗賢峯第IIA期最細實用面積445平方呎起,為第1座1樓E及F室,同屬2房間隔,並且連261平方呎平台;而全盤及該期最大為第2座28樓A室,實用面積2,572平方呎,4套房間隔,連1,342平方呎天台。
至於第IIB期最細單位為第5B座1樓D及E室,實用面積同340平方呎,1房間隔,設108平方呎平台;至於第5A座28樓A室,實用面積1,304平方呎,4房雙套間隔,連941平方呎天台。
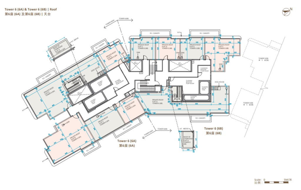
值得一提的是,除第IIB期第5A座、第5B座及第6B座28樓C至F室,以及第6A座28樓B至E室外,其餘連天台單位的天台,均由內置樓梯連接。
資料來源:經濟日報-地產站




























































